Thiết kế nhà ở kết hợp kinh doanh là xu hướng phổ biến ở thành thị và nông thôn. Bạn đang dự định xây nhà và mở cửa hàng buôn bán, hãy tham khảo căn nhà 3 tầng với diện tích 60m2 dưới đây
Mặt bằng thiết kế nhà ở kết hợp kinh doanh:

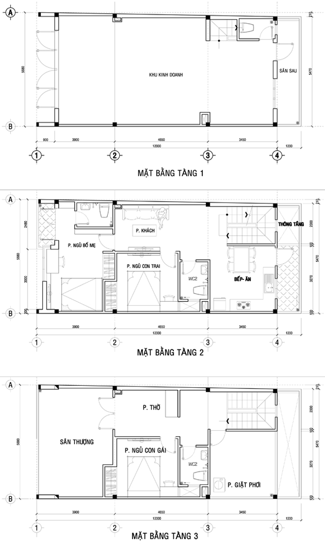
Mặt bằng 3 tầng thiết kế nhà ở kết hợp kinh doanh
Với diện tích 60m2, toàn bộ không gian diện tích tầng 1 được thiết kế để kinh doanh, bao gồm 1 phòng vệ sinh đặt dưới gầm cầu thang, sân sau được thiết kế nhỏ gọn để tạo không gian thoáng đãng.
Tầng 2 được thiết kế với 2 phòng ngủ và 2 phòng vệ sinh, 1 phòng khách và khu vực bếp ăn
Tầng 3 gồm 1 phòng ngủ, 1 phòng thờ, khu giặt phơi và sân thượng.
Xây nhà ở kết hợp kinh doanh chỉ với 900 triệu đồng?
– Phần thô và nhân công hoàn thiện khoảng 600 triệu đồng
– Sơn nước 30 triệu đồng
– Trang thiết bị vệ sinh 30 triệu đồng
– Chi phí gạch 50 triệu
– Đá granit cầu thang và bếp: 30 triệu
– Cửa sổ và cửa chính, cửa phòng, lan can cầu thang: 50 triệu đồng
– Rèm cửa 5 triệu đồng
– Tủ bếp, tủ quần áo, giường ngủ: 80 triệu
– Đèn trang trí và chiếu sáng 10 triệu
– Gối, nệm: 15 triệu
Phối cảnh 3D thiết kế nhà ở kết hợp kinh doanh

Phòng bếp ăn được thiết kế thoáng, rộng với gam màu sáng bắt mắt

Phòng khách nhỏ được trang trí bằng giấy dán tường khổ lớn giúp nới rộng không gian, tạo cảm giác thư giãn.



Phòng ngủ bố mẹ (tầng 2) được thiết kế hiện đại, ấm cúng

Phòng vệ sinh phối màu tương phản đẹp mắt

Thiết kế phòng ngủ cho bé với màu sắc và trang trí nội thất khoa học, kích thích sáng tạo

Phòng thờ tầng 3
Xem thêm: Thiết kế nội thất chung cư cao cấp
Thiết kế và thi công nội thất biệt thự
Để được tư vấn thiết kế nội thất nhà ở, hãy liên hệ ngay với chúng tôi:
CÔNG TY CP QUẢNG CÁO GIẢI PHÁP VIỆT NAM (SOLUTION)
Hotline: 0912525577 – 0976602468
Email: contact@solution.com.vn
Website: http://solution.com.vn/