Solution cung cấp cho khách hàng hình ảnh bản vẽ thiết kế nội thất chung cư nhằm đem đến cái nhìn toàn diện nhất khi bố trí nội thất khoa học cho một căn nhà.
Khi nắm rõ chi tiết bộ hồ sơ thiết kế nội thất chung cư cao cấp đầy đủ và chi tiết, mỗi khách hàng có thể đóng vai trò như một kỹ sư giám sát theo dõi công trình và nắm trong tay được tiến độ công trình nhà mình. Dưới đây, Solution xin gửi đến quý khách hàng hình ảnh bản vẽ thiết kế nội thất chung cư cao cấp để khách hàng có hiểu rõ được một bộ sơ công trình bao gồm những quá trình nào, những chi tiết cụ thể từng cách thiết kế để chủ đầu tư có thể giám sát được.
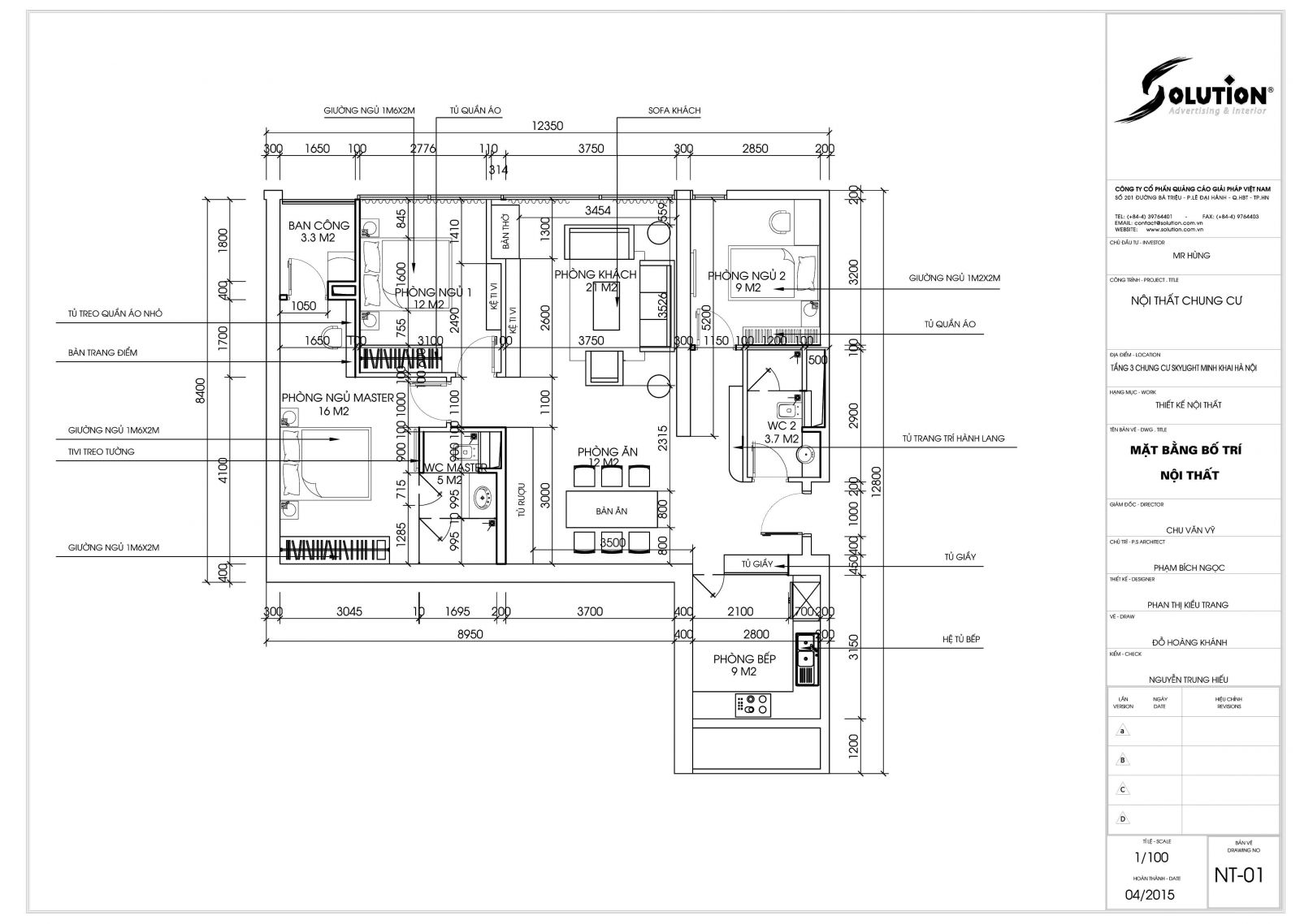
1. Bản vẽ thiết kế nội thất chung cư
Mặt bằng bố trí nội thất chung cư anh Việt Anh do Solution thực hiện
Hồ sơ thiết kế nội thất gồm nhiều bản vẽ nội thất được triển khai bao gồm rất nhiều các bản vẽ khác nhau chi tiết các hạng mục: kiến trúc, kết cấu, bày trí nội thất, lắp điện, nước, sân vườn, cổng, hàng rào…
Ở phần kiến trúc trong bộ hồ sơ bao giờ cũng có mặt bằng tầng, mặt bằng sàn, mặt bằng lát… mặt đứng, mặt cắt triển khai từ phần nhỏ nhất tới lớn nhất của ngôi nhà, từ chi tiết lan can, các chi tiết trong phòng vệ sinh. Sau đó tại phần cửa: mặt bằng định vị cửa, chi tiết cửa, chi tiết phần cổng, hàng rào và các phần trong khác ngôi nhà.
Bản vẽ thiết kế nội thất chung cư bố trí đầy đủ các nội thất với công năng của ngôi nhà trong tương lai dựa trên yêu cầu, mong muốn của gia chủ và kinh nghiệm làm việc của kiến trúc sư Solution sao cho tạo ra sản phẩm tối ưu nhất.
2. Phối cảnh thiết kế
Phối cảnh theo bản vẽ thiết kế nội thất chung cư cao cấp
Theo như mong muốn của chủ căn hộ, muốn mang thiên nhiên vào trong gian phòng, các KTS tại Solution đã đưa nhưng bức tranh gương kính về thiên nhiên và các đồ nội thất cực kỳ tinh tế làm điểm nhấn cho ngôi nhà.
Đồng thời, các KTS cũng khéo léo sử dụng chất liệu gỗ veneer walnut để tạo cảm giác sang trọng, quý phái. Nhược điểm chung của những căn hộ chung cư là diện tích khá nhỏ hẹp nên việc bố trí những tấm gương lớn trong phòng ngủ và phòng ăn giúp mang lại cảm giác rộng rãi hơn cho không gian căn hộ.
Vì căn hộ hơi thiếu ánh sáng tự nhiên nên Solution đã chọn bộ đèn chùm vừa giúp tăng ánh sáng cho ngôi nhà và cũng góp phần tạo điểm nhấn chung cho không gian.
Để nhận được những tư vấn miễn phí về thiết kế và thi công nội thất chung cư cao cấp, vui lòng liên hệ với chúng tôi để được hỗ trợ trực tiếp và nhanh chóng nhất!
CÔNG TY CP QUẢNG CÁO GIẢI PHÁP VIỆT NAM (SOLUTION)
Hotline: 0912525577 – 0976602468
Email: contact@solution.com.vn
Website: http://solution.com.vn/
